Wohnungzu Verkauf in Torpè (NU) via liberazione

135.000 €
130 m2
3 die Zimmer
1 Badezimmer
Objekt-Nr.
V000369
Gemeinde
Torpè
Kategorie
Wohnung
Räume
5
Parkplätze
1
qm Garten
110
Etage
1,5
Energieklasse
G
Zustand Immobilie
gut
Gesamteindruck
mittelmäßig
Lage
Zentrum
Ausblick
freie Sicht
Ausrichtung
Osten Süden Westen
Freie Seiten
3
Garten
privat
Ausstattung
Übernahme möglich
Wohnraum-Typologie
Wohnraum
Küche
Wohnküche
Heizung
autonom
Heizungsart
Wärmepumpe
Heizungstyp
Luftheizung
Energiequelle
Elektrisch
Warmwasser
autonom
Kühlung
Teilt
Tür/Fensterrahmen
PVC
Türen / Fenster
gut
Rollläden
PVC
Boden Wohnraum
Fliesen
Boden Zimmer
Fliesen
Boden Küche
Fliesen
Boden Bad
Fliesen
die Zubehöre
Klimaanlage
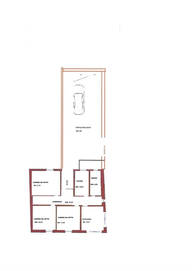
Die zum Verkauf stehende Wohnung in der Gemeinde Torpè, nur wenige Schritte vom Stadtzentrum entfernt, stellt eine ideale Immobilienmöglichkeit für diejenigen dar, die eine komfortable Wohnlösung erwerben möchten. Die Immobilie erstreckt sich über eine Fläche von 130 qm und verfügt über fünf Zimmer, darunter Wohnzimmer, Küche, drei Schlafzimmer und ein renoviertes Badezimmer mit Fenster. Die drei Doppelzimmer bieten ausreichend Platz für die Familie oder gelegentliche Gäste und gewährleisten Privatsphäre und Komfort für alle Bewohner.

Die Wohnung befindet sich in gutem Zustand und verfügt über helle Räume dank großer Fenster. Die Energieklasse ist G.

Der Verkaufspreis von 135.000 EUR bietet eine ausgezeichnete Gelegenheit für diejenigen, die eine Immobilie in einer ruhigen und gut angebundenen Gegend suchen, nur wenige Schritte von den wichtigsten Dienstleistungen und Verkehrswegen entfernt. Es ist nur wenige Kilometer von den Stränden entfernt. Zögern Sie nicht, uns für weitere Informationen zu kontaktieren oder um einen Besichtigungstermin der Wohnung zu vereinbaren.

der Lageplan

via liberazione , Torpè (NU)

Sofortanfrage zum objekt

Senden

teilen

Cookie preference